HOSPITALITY

CLUB HOUSE &
MARKETING GALLERY

CITRA HILLS SENTUL,
BOGOR

UNIT area

2.480 m2

SITE AREA/UNIT

4.600 M2

YEAR

2025 (in-progress)

architects

STUDIOKAS

principal architect

Kusuma Agustianto

interior designer

 

project architect

ROLAND JIRALDY

artist impression

koma visualization

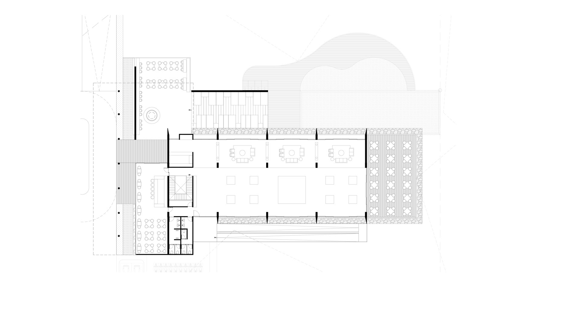
Situated within a site of dramatic contours, the design of a public building that is visually striking yet remains respectful to its natural surroundings presents a compelling architectural challenge. Conceived as a clubhouse for the local community—comprising a swimming pool, gym, multipurpose hall, and marketing gallery—the architecture aims to accommodate these diverse functions while offering users the experience of engaging with nature itself.

Responding to the topography, the design adopts a balanced cut-and-fill strategy, ensuring that the building maintains a direct relationship with the ground on both its upper and lower levels. This approach naturally defines the zoning: the upper floor is dedicated to the marketing gallery and outdoor communal areas, while the lower floor houses the primary clubhouse facilities, positioned in close alignment with the terrain. Such an arrangement enhances the spatial experience, allowing users to feel on par with the surrounding landscape.

Building orientation is carefully considered to optimize natural light and views. The elongated massing faces east, capturing the beneficial morning sunlight for interior spaces, while the northern and southern façades also admit daylight. The eastern façade opens toward a protected forest, establishing a strong visual connection with the natural environment. By orienting its principal axis in this direction, the building frames the forest as a defining element of the user experience.

Ultimately, the project aspires not only to stand as a landmark within its context but also to create an environment that is welcoming, harmonious, and deeply integrated with its natural setting.

Design